Partager la publication "Résidence Chambord, un duplex des années 20 transformé en maison moderne"
La résidence Chambord n’aurait sans doute pas attiré mon attention si les architectes de l’agence Nature Humaine ne l’avait pas entièrement transformée. Cet ancien duplex des années 1920 n’avait pas fière allure et passait totalement inaperçu au milieu des autres maisons de villes mitoyennes de ce quartier de Montréal.
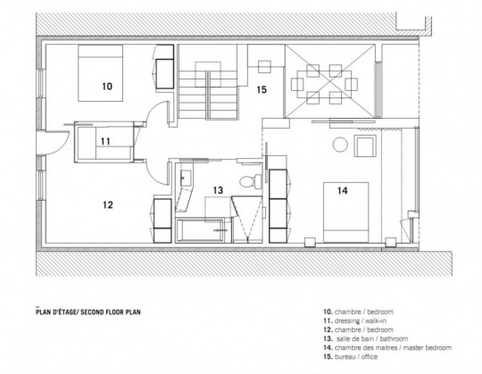
C’est alors que la nouvelle propriétaire des lieux a fait appel à ces talentueux architectes canadiens pour transformer le deuxième étage de sa maison afin d’y aménager 3 chambres à coucher et un espace de bureau.
Un challenge que les architectes de Nature Humaine ont relevé avec brio.
Impressionnante rénovation : Cette vieille maison de ville des années 20 est devenue une superbe villa contemporaine
Pour commencer, la façade côté rue en pierre grise a été remise en état, tandis que la façade côté cour a été entièrement remodelée toute en transparence.
Le concept du projet est de brouiller les limites entre l’intérieur et l’extérieur. Ainsi une généreuse fenestration inonde la maison de lumière et donne le sentiment à ses occupants d’être en lien continuel avec le jardin.
La chambre des maitres est conçue tel un volume en porte-à faux qui se projette à travers les parois vitrées pour aboutir en suspension au dessus de la terrasse. Les matériaux extérieurs utilisés sont le cèdre de l’ouest et des panneaux de fibrociment peints en noir et blanc.
Informations sur la résidence Chambord
Type de maison : Résidence unifamiliale
Intervention: Réaménagement intérieur
Superficie: 167 m2
Localisation: 4371 Chambord, Montréal, QC
Date: 2013
Architecte : Nature Humaine
Crédit photo: Adrien Williams
Partager la publication "Résidence Chambord, un duplex des années 20 transformé en maison moderne"




















